Multi-Möglichkeiten-Immobilie in Göppingen

Wir bieten im Alleinauftrag eine besondere Immobilie in Göppingen an.

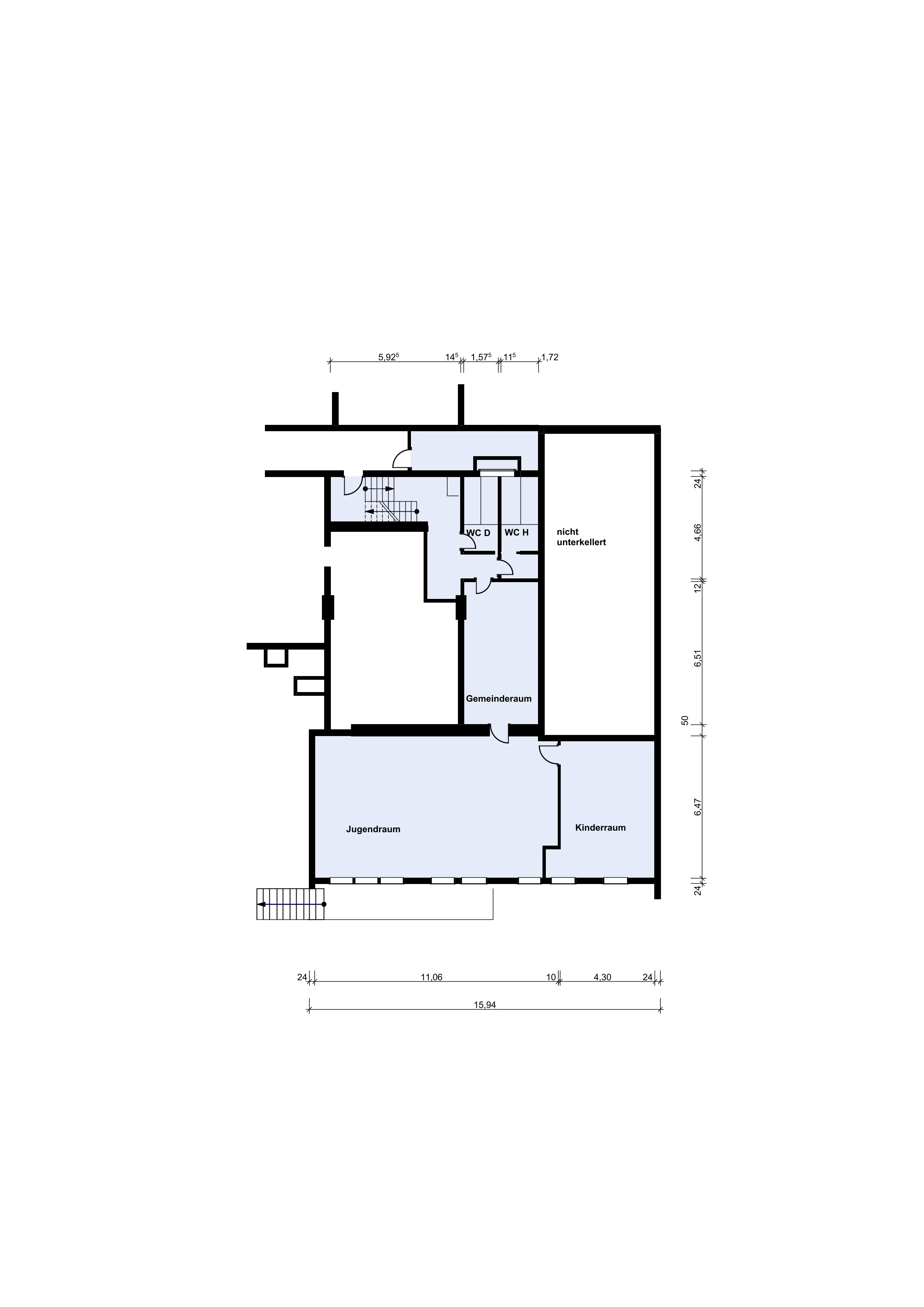
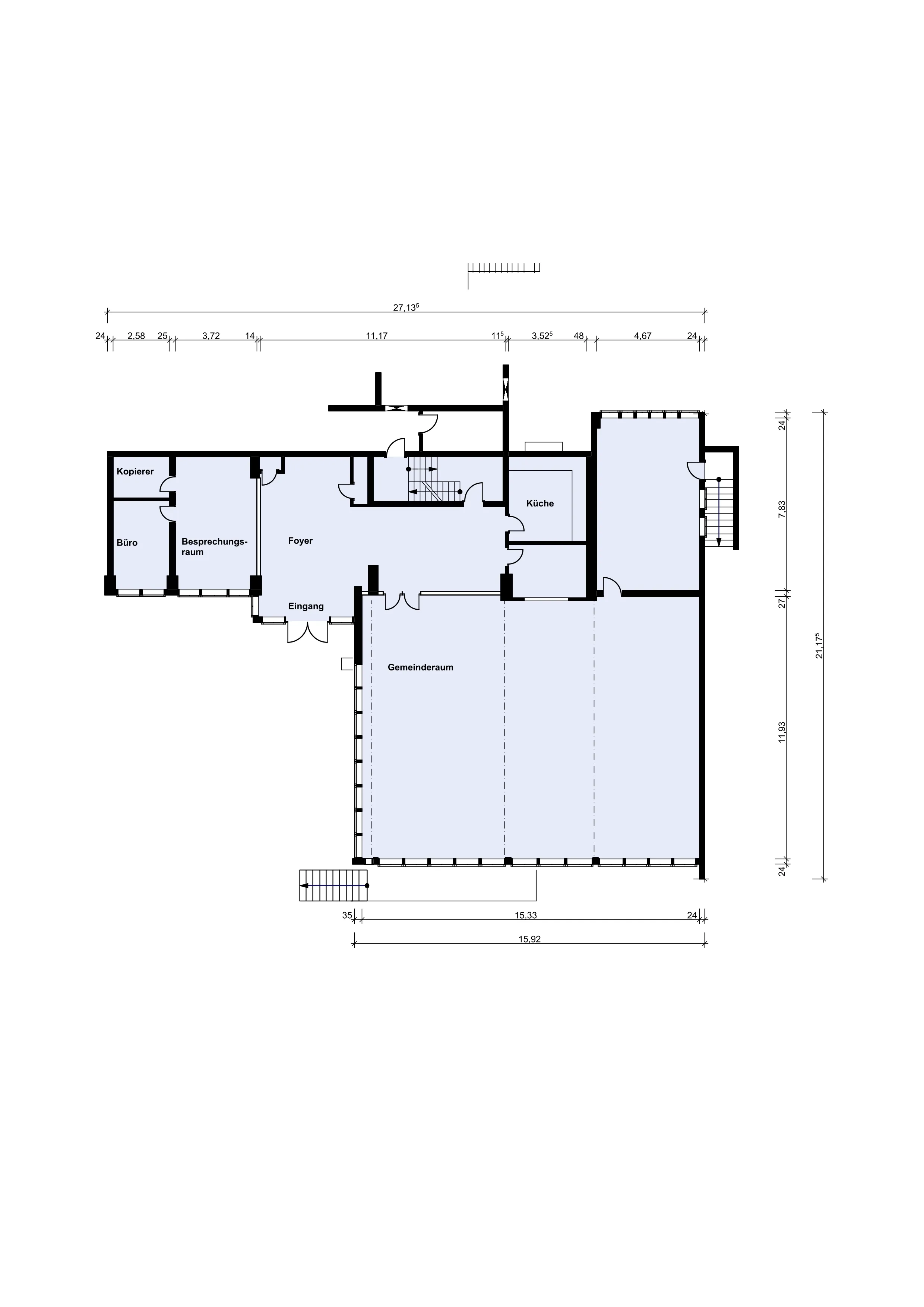
Auf zwei Ebenen und ca. 470qm Nutzfläche sind vielfältige Nutzungen möglich. Zur Zeit als Gemeindezentrum einer Kirche genutzt ist dort zukünftig auch Wohnen, Büro, Praxis oder sonstiges nichtstörendes Gewerbe möglich.

Wir haben verschiedene Varianten überlegt, die wir Ihnen gerne im Rahmen in einer Besichtigung vorstellen.

Das Gebäude ist im Sommer freiwerdend.

 

Kaufpreis: 470.000€ 

provisionsfrei für den Käufer

 

Sprechen Sie uns an:

Achim Ritter

info@ritter-baukontor.de

07181- 932 998 0